小山市駅東通り2丁目 シティビル1棟(4階建て)
基本物件情報
- 価格2350万円
- 交通-
- 住所小山市駅東通り2丁目13-13
- 間取り-
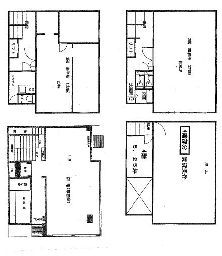
- 占有面積322.14m²
- 築年数1975.2
-
方位
- 建物種別店舗・事務所
- 構造鉄筋コンクリート造
- 物件階層4
こだわり設備・特徴
- 権利所有権
- 登記地目宅地
- 現況-
- 道路付き-
- セットバック不要
- 私道負担無し
- 位置-
-
引渡時期
- 占有床面積322.14(㎡)
- バルコニー床面積-
- 用途地域近隣商業地域
- 建ぺい率80%
- 容積率200%
- 開発行為の許可-
- その他の規制-
- 電気-
- 公共水道-
- 公共下水-
- ガス-
- 駐車場-
- 追加駐車場-
- カースペース-
- 駐輪場-
- 修繕積立金-
- 管理費-
- 建築条件無し
- リフォーム未済
- 近隣施設-
- 取引形態仲介
- 資金借入紹介無し
各物件の内容や画像等はすべて現況優先とさせていただきます。
諸条件は変更されている場合もございますので、ご契約時にあらためてご確認ください。
また、ご先約の方により契約済となった場合はご容赦ください。
当サイト掲載の不動産情報・間取図・写真などの無断掲載は禁じます。